Rehabilitación Edificio C.Y.T.

VIVIENDAS

Description

Services

  • Superfície: 250 m2
  • Localización: Barcelona
  • Fecha: 2013-2014
  • Arquitecto ass.: G.Marcuerquiaga
  • Fotos: José Hevia
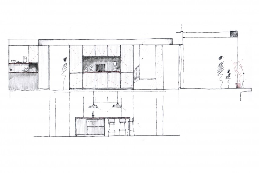
  • Intervenir en un edificio moderno, incluido en el catálogo del patrimonio arquitectónico, ha sido una inmejorable ocasión para -todo y lo limitado que era el presupuesto en proporción a la superficie y la dimensión de la vivienda- afrontar el proceso con una especial sensibilidad hacia la preexistencia, la memoria de la misma y las demandas del cliente-promotor, que con una encomiable predisposición nos han permitido ejercer con delicadeza una tarea que ha sido muy gratificante y enriquecedora. Ellos fueron los primeros en apreciar y poner en valor muchos de los elementos originales por lo que respecta a los acabados interiores conservados desde hacía más de cincuenta años: la escalera, todas las puertas y carpinterías interiores, el pavimento de madera maciza sobre rastreles y algún cerramiento mediante perfilaría de hierro que debe de ser de los pocos que quedan en este edificio -diseñado por F.Mitjans hasta el último detalle- que sean originales. El arquitecto puso mucho énfasis durante el año 1958 -fecha del proyecto original- en la resolución de todo tipo de detalles como por ejemplo las manetas y pomos de todas las puertas de las viviendas, que fueron diseñados para la ocasión, como así lo delata el plano existente, con dicho detalle a escala 1:5 encontrado al archivo del C.O.A.C.; diseño de maneta que ya dice mucho la declaración de intenciones que supone todo el complejo proyectado por F.Mitjans. El proyecto de rehabilitación se basa en una propuesta espacial que pretende leer adecuadamente el legado de F.Mitjans en muchos de los espacios que quedaban casi intactos respecto a la obra original, con el valor añadido que ésto comportaba. También ayudó el objetivo planteado el hecho de devolver al estado original algunos espacios claves del proyecto de 1958, más concretamente las terrazas de la planta baja, a las que se les había despojado de su inicial carácter intersticial (mediante diversos tipos de cubrimiento: forjados, placas de fibrocemento o cerramientos en fachada) tan presente en toda las obras de F.Mitjans. La vivienda a rehabilitar consta de 188 m² en la séptima planta (con 53 m² de exterior sumando las dos terrazas) y 95 m² de interior en la octava y última planta del edificio ( con 52 m² de terraza panorámica en la esquina desde donde divisar toda la ciudad). Las dos plantas están conectadas interiormente por una escalera de madera, apoyada sobre una losa de cemento armado, que se decidió mantener en el mismo estado desde el primer momento puesto que es otro de los elementos destacados a nivel patrimonial -aunque no catalogado- al que se le libera de un pequeño tabique lateral para abrirla hacia el comedor, de forma que se convertirá todavía más en u!n destacado elemento central de la vivienda. El programa era denso: una familia numerosa con con una gran afición a la música cosa que implicaba prever que una de las estancias s!e debía habilitar como sala de música y además un mueble expositor para el gran número de guitarras a almacenar. Fue muy enriquecedor comprobar cómo en el esquema espacial originado por el proyecto de F.Mitjans, siguiendo también las planos localizadas en los archivos, el piso todo y tener solo previstos cuatro dormitorios -hecho que contrasta con el tamaño de la vivienda que en total dispone de 283 m² de interiores y 105 m² de terrazas- es capaz de adaptarse a las nuevas e!xigencias programáticas sin casi ninguna modificación en los espacios destinados a dormitorios. Las primeras propuestas del proyecto iban dirigidas a centrar la modificación de los espacios en la amplia zona de cocina y servicios. Decidiendo hacer de ésta parte de la casa un núcleo completamente abierto a los espacios que lo rodean, sin puertas hacia los espacios comunes de recibidor, distribuidor y escalera; constituyéndose como el espacio generador de la vivienda que además conecta directamente con la gran terraza en la que se eliminan unos revestimientos de cañizo sustentados sobre la celosía de grandes vigas de cemento armado proyectadas por Mitjans para cualificar ésta y la otra terraza de la planta principal. La segunda terraza de la planta baja, más pequeña, también se recuperó, desmantelando un forjado superpuesto a la gran pérgola original, descubriendo las grandes bigas de hormigón también en ésta terraza. Una de las virtudes del espacio proyectado por F.Mitjans, a mantener y mejorar, era la del espacio fluido y la concatenación de las diferentes estancias. Los planos originales del proyecto de éste ático dúplex en esquina -que es tipologicamente una excepción entre todas las demás viviendas- nos ayudaron a interpretar el devenir de los hechos proyectuales acometido por FMitjans desde el proyecto a su materialización. La vivienda se ha mostrado muy fexible en el momento de introducir mejoras sustanciales en el proyecto mientras se iban ejecutando las tareas de demolición. Redondeamos la propuesta de nueva distribución de la planta baja, una vez iniciada la obra, comunicando el dormitorio de la fachada posterior con la zona de servicio y cocina, permitiendo así ampliar el otro dormitorio de ésta planta gracias a poder eliminar el paso hacia el primero. Ofreciendo una nueva e interesante circulación y posibilitando que estos dos dormitorios con su baño, que ahora serán ocupados por hijos mayores, puedan convertirse en un futuro en el dormitorio principal de los padres. En cuanto a la planta superior, se ha mantenido tal y como era originalmente. Los dormitorios del resto de hijos y el de los padres queda ubicado en ésta segunda planta, con la instalación de una gran zona de trabajo en el distribuidor de llegada, que es el que tiene la carpintería metálica de f!achada original, con vistas en el Tibidabo, al igual que la gran terraza de ésta planta. En los dos lavabos de esta planta se lleva a cabo una rehabilitación que elimina las dos bañeras de forja sustituyéndolas por duchas de obra hechas ‘in situ’ y a su vez se conservan unos particulares pavimentos originales de pequeña baldosa de gres en forma hexagonal y color claro existentes originalmente en todos los baños de la finca. En las dos plantas se conservan las características puertas rechapadas en roble -con tapetas de la misma madera maciza- conjuntamente con sus manetas acabadas en acero lacado de color negro, diseñadas 'adhoc' por F.Mitjans. Algunas de las puertas sobrantes se reutilizan a modo de mesas para escritorio. Ésta estratégia, compartida desde el primer instante con la nueva propiedad de la vivienda y dado el caso expcepcional en cuanto al buen estado de conservación, persigue la idea de poner en valor un patrimonio y a la vez establecer unos parámetros de economía de medios que han ayudado a lograr -e incluso rebajar- los objetivos presupuestarios. También nos ha permitido proponer un lenguaje que no se empaste con la preexistencia y que a la vez no provoque una desintonia argumental, en cuanto a la idea de espacio, sino que la refuerce. Es por eso que en la elección de los nuevos materiales de revestimiento se procura minimizar la diversidad en los acabados, resumiéndolos en: microcemento continuo para nuevos pavimentos, hierro barnizado, DM pintado con el mismo color de paredes (blanco o gris) y tablero de madera de abeto c!ontrachapado. Para rematar el equipamiento de la vivienda se aprovecharon todo tipo de muebles y otras piezas como espejos y luminarias ya existentes en la vivienda -acopiándolos antes de intervenir en ella-, encontrandoles una nueva ubicación y dotándolos de una segunda vida.