Grupo Gispert / Les Punxes

Oficinas

Description

Services

  • Superfície: 350 m2
  • Localización: Barcelona
  • Fecha: 2013
  • Diseño gráfico: Blanca Cumellas
  • Fotos: José Hevia
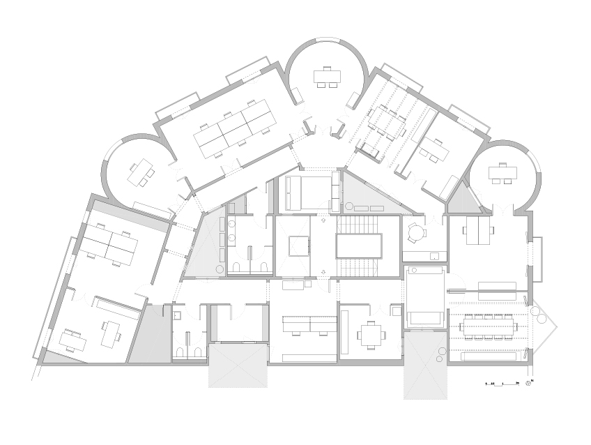
  • El encargo del nuevo diseño de oficinas del Grupo Gispert tiene su orígen principalmente en una serie de cuestiones de identidad y representatividad profesional. Se trata del proyecto de interiorismo y ampliación de las oficinas de éste reconocido bufete de abogados y asesores fiscales cuya sede principal se encuentra desde hace más de 70 años en la ‘Casa de Les Punxes’, uno de los edificios del Modernismo más emblemáticos de la ciudad de Barcelona, obra de Josep Puig i Cadafalch. La aparente totalidad del edificio ocupa excepcionalmente una peculiar manzana del Eixample con forma de hexágono irregular. Emplazado en la Avenida Diagonal y muy cerca del Paseo de Grácia se podría decir que a nivel urbanístico es una clara anomalía respecto a las manzanas regulares de plan Cerdá: su singular compactación no le permite tener un interior de manzana como en la mayoría de la trama urbana de ésta zona de la ciudad. Vale la pena hacer reseña que la ciudad hace al edificio, ya que Puig i Cadafalch dispuso una secuencia contínua de estancias ortogonales en el perímetro de toda la manzana, y en los giros de la misma diseña unas salas de planta circular que a su vez son el orígen de los 6 torreones que caracterizan el conjunto de aire mediaval. El reconocido arquitecto recibió el encargo de unificar las viviendas preexistentes -en el mismo solar- por parte de las tres hermanas Terradas. Su construcción se terminó en 1905 y en enero de 1976 fue declarada Monumento Histórico Nacional. En 1980 fue sometida a una rehabilitación integral. El edificio se ha abierto al público y es visitable parcialmente: en su planta baja -donde se planea ubicar el Museo Puig i Cadafalch-, sus azoteas y alguna de sus características torres acabadas en punta - punxa, en catalán-. El proyecto que se nos plantea es en primer lugar reubicar y espaciar los puestos de trabajo y las diferentes dependencias (recepción, salas de firmas con clientes, salas de reprografía, archivos, despachos de abogados, etc.) que se acumulaban densamente en una sola planta. Éste hecho obliga a la dirección del gabinete jurídico a tomar la decisión de doblar la superficie alquilando el piso superior vacío. Ésta decisión de carácter operativo está acompañada por otra de carácter representativo: la necesidad de, en segundo lugar -pero no menos importante-, ofrecer mediante el nuevo proyecto de interiorismo, una imagen mucho más acorde con el prestigio profesional del bufete y además un adecuada puesta en valor de los magníficos espacios en lo que se desarrollan l!as distintas actividades. Obviamente el lugar nos ofrecía unos mimbres que facilitaron el encage económico del proyecto atendiendo al bajo presupuesto del que se disponía, en comparación a la extensa superfície a o!cupar y reorganizar. El planteamiento proyectual se basa en tres aspectos: aprovechamiento de algunos muebles existentes con cierto valor estético; diseños a medida de algunas piezas de mobiliario, en las zonas de atención al público; selección de un nuevo mobiliario como contrapunto a los elementos originales existentes; diseño de nueva iluminación técnica en la totalidad de los espacios que además se mezcla con una cuidada selección de lámparas decorativas, colocadas éstas en ámbitos de uso común. El intenso trabajo de estudio adecuación del nuevo programa de usos realizado mano a mano con la tercera generación de abogados de la família Gispert y la idoneidad de algunas de las soluciones además del especial trato con el que se ha encarado la recolocación del personal mediante criterios de matriz casi doméstica en la relación de las personas respecto al lugar, produjo un resultado de gran satisfacción.