CASA AA

VIVIENDAS

Description

Services

  • Superfícies vivenda: 400 m2
  • Superfícies jardín: 1.200 m2
  • Obra original: Antoni Amargós arquitecto, 1974-76
  • Localización: Sant Just Desvern, Barcelona
  • Fecha rehabilitación: 2016-2020
  • Equipo redacción proyecto: G.Marcuerquiaga arq., David Pérez, Rubén Jiménez, Tiaré Gálvez
  • Arquitecto asociado rehab.: Mario Cortés
  • Paisajista asociada rehab.: Esther Ribas
  • Fotos: José Hevia / Eugeni Pons+Arquitectura y Diseño RBA
  • Estilismo: Allan Stuart
  • Vídeo: Carlos Pericás
  • Fotos estado previo: José Hevia
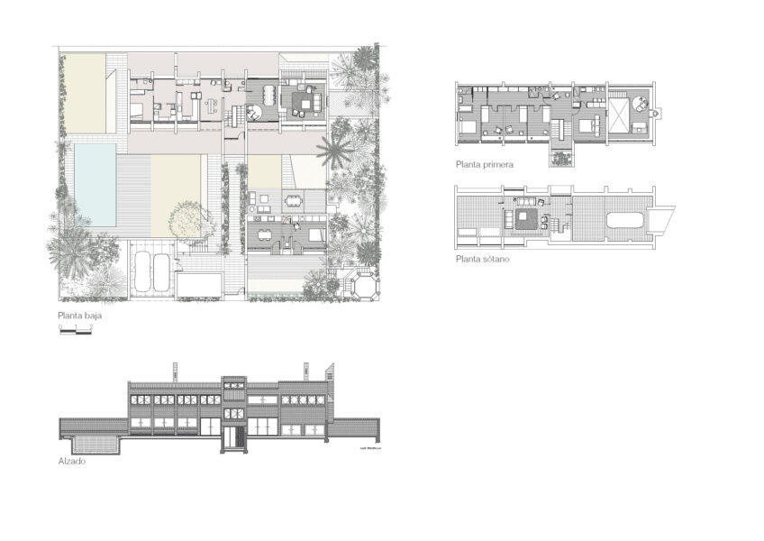
  • La casa fue proyectada y construida por el arquitecto Antoni Amargós Altisent (Barcelona, 1940), para su propia família, entre los años 1974 y 1976 en una parcela en esquina emplazada en el nucleo histórico de Sant Just Desvern. El edificio principal constaba de 3 plantas que en total suman unos 400 metros. Además en el mismo solar existían un pequeño pabellón de invitados (utilizado como taller de arte) y una imponente construcción de estilo modernista, a modo de “belvedere”. El proyecto ha tenido como principales objetivos la rehabilitación tanto de los interiores como también de los jardines y la piscina, construyendo un garaje de nueva planta junto al acceso principal desde la calle. Esto ha supuesto reconsiderar las circulaciones, recorridos y usos de todo el exterior y el jardín, acometiendo una revisión y propuesta completa de todo el exterior a nivel botánico. A su vez la glorieta modernista ha sido objeto de algunas actuaciones para su restauración. Antoni Amargós fue colaborador, a finales de los años 60, de J.L. Sert. Esta casa fue una de sus primeras obras. Fue construida con un ladrillo macizo, de fabricación semi manual y producido en una tejería muy cercana. El módulo de 30 cm de esta pieza fue la base de todo el proyecto de Antoni Amargós, todas las proporciones y su arquitectura, en esta obra, se refieren a ese módulo, multiplicado. En ella se acumulan y poligrafían primeras intenciones del autor. Aparecen un amplio abanico de influencias contemporáneas para materializar una arquitectura contundentemente culta, como si de un primer manifiesto se tratase. Los interiores tenían sugerentes elementos de gran valor compositivo y constructivo que se han respetado y restaurado. Se han modificado puntualmente algunos tabiques y eliminado algunos elementos acometiendo a su vez una necesaria renovación de todos los pavimentos. Cinco puntuales intervenciones en los grandes vanos de fachada, sustituyen las antiguas carpinterías por unas nuevas de perfil oculto. Se restauran todos los porticones de librillo, con su color original. Se han intensificado las fuertes conexiones interior-exterior de toda la casa, en la que los interiores a nivel de jardín se perciben ahora casi como si de un pabellón se tratasen. Se han restaurado el resto de ventanas de madera de pino melis. Se han renovado todas las instalaciones sin malbaratar la configuración original de los espacios y sus ajustadísimas proporciones en altura. Preservamos las piezas de alicatado en la cocina y el baño principal, entendiéndolos como una parte importante de la preexistencia y atendiendo al juego de volúmenes configurados y acabados con este material. La madera de pino melis también ha ido reapareciendo por todos los interiores, mediante un proceso de decapado. Es en los exteriores donde la intervención se ha planteado de manera mucho más intensa tanto en su materialidad como en su formalización. Los jardines y la piscina han sido sometidos a una total revisión y renovación. Recuperar el eje de acceso principal desde la puerta de la calle hasta el intersticio de ingreso a la casa y volver a hacer emerger su función de gran vestíbulo exterior. Conectarlo además con la nueva pieza del garaje y su vestíbulo propio era otro de los vectores principales de nuestro proyecto. Se ha utilizado pavimento continuo y además un nuevo solado de piedra San Vicenç, en los ámbitos de circulación exterior y piscina. En el exterior se han instalado tres entarimados, de madera de pino. Se han recuperado y restaurado apliques ya existentes, coherentes con el conjunto y que conectan de alguna manera la obra original con la actual rehabilitación. Se han reutilizado elementos originales del edificio, usándolos de nuevo y dándoles otro lugar o función. Mantener el fuerte carácter que nos encontramos inicialmente ha estado en el trasfondo de todas las decisiones de proyecto. Crear cierto contraste entre lo nuevo y esa preexistencia, mediante un lenguaje que los conecte. En ese sentido el garaje de nueva planta se concibe como un volumen que se muestra contundente hacia la calle, pero mucho más discreto hacia el jardín y la casa. El hecho de que esté semiundido con respecto al nivel del jardín principal y la piscina así lo facilita. Es capaz de construir una nueva narrativa proyectual en continuidad con el resto de actuaciones en el exterior que se van diluyendo hacia el interior. Rehabilitar y actualizar, casi 50 años después, un casa-manifiesto -muy pensada- era el reto; con un jardín que presentaba aún un recorrido hacia una domesticidad más amable, mediante una nueva lectura de sus usos. Es desde ahí que entendimos que el jardín podía ser el nuevo “estar” de la casa en el que la propuesta y configuración de los pavimentos de tarima de madera y sobre todo las nuevas masas vegetales con sus distintos colores y volúmenes plantados, cambiantes durante las distintas estaciones, cumpliesen la misma función de acompañamiento y creación de atmósferas que los acabados o muebles en un interior; en definitva, diseñar un exterior como si de un interior se tratase.